2012年08月22日
安曇野市で、『設計室a-ray』(これでアライと読みます)
という名の設計事務所を構えている新井と申します。
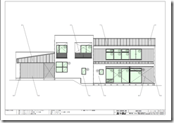
先週末に『西荒町のイエ』の打合せがありました。
実施設計もほぼ終了。
今回は細かい部分の調整や選定について話し合いました。
外壁のテクスチャーや、
照明・コンセント等の仕様や位置、
床材の素材の確認などなど。
今回の決定を踏まえ、
設計図面を整備し完成させる予定です。
次の作業は見積り。
今回も『分離発注方式』で施工する予定なので、
ワタクシが一つ一つ拾う作業をいたします。
規模の大きい建物なので、
かなりの時間を要しそうですが、
じっくりしっかりやっていきたいと思います。
11月頃着工の予定。

←前の記事
趣を求めて [日常Vol.99]
次の記事→
オドロキ [仕事Vol.81]
![]()